Die Wohnanlage „Anton-Mell-Weg 6“ entsteht im nördlichen Teil des Bezirkes Graz-Straßgang im Viertel zwischen Harter Straße und Kärntner Straße. Das Wohnviertel ist geprägt von Einfamilienhäusern, Reihenhäusern und Wohnanlagen. Neu errichtet werden neun Einheiten für gehobenes Wohnen.

Straßgang ist der 16. Grazer Stadtbezirk im Südwesten, am Fuß von Buchkogel und Florianiberg. Am Grazer Buchkogel liegt die kleine Bergkirche St. Johann und Paul. Sie ist, wie das Schloss St. Martin, die Aussichtsplattform Buchkogel oder die Rudolfswarte, ein beliebtes Ausflugsziel für Erholungssuchende und Sportbegeisterte. Nirgendwo bietet sich ein schönerer Blick auf Graz als von den Höhen und Wanderwegen des Plabutsch. Auch auf kürzeren Pfaden wie dem Erlebniswanderweg für Kinder zu den idyllischen Bründelteichen kann man die lokale Flora und Fauna erleben.

Das Grundstück befindet sich gegenüber dem Bundesrealgymnasium Klusemannstraße in einer Seitengasse der Harter Straße. Somit ist es ruhiger gelegen, profitiert aber gleichzeitig von der idealen Infrastruktur. In der nahen Umgebung gibt es Parks und Grünflächen, die Platz für diverse Sport- und Freizeitaktivitäten bieten.

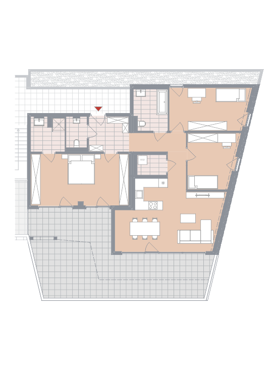
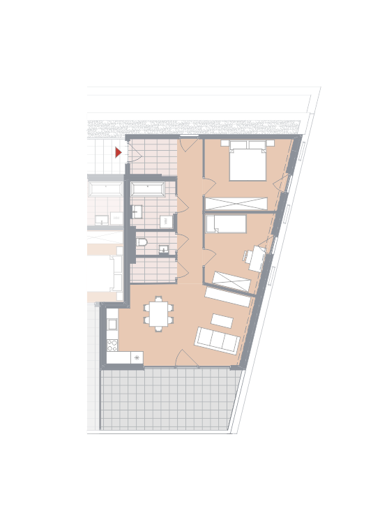
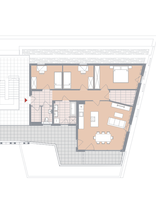
Das Wohngebäude ist ein 4-geschossiger Bau mit Teilunterkellerung. Im Kellergeschoss sind die Abstellräume für die einzelnen Wohnungen sowie die Technikräume untergebracht. Alle Wohnungen verfügen über Terrasse und Garten oder über große Balkone. Die Wohnungen werden über ein zentrales Treppenhaus mit Aufzugsanlage erschlossen. Vom Treppenhaus gehen Laubengänge zu den Wohnungen ab. Im Außenbereich sind Parkplätze und Fahrradabstellplätze vorhanden.

  • Standort

    Anton-Mell-Weg 6
    8053 Graz-Straßgang

  • Projekttyp

    Eigentumswohnungen
    frei finanziert

  • Einheiten

    9 von 9 Wohnungen verfügbar

  • Quadratmeter

    2 - 4 Zimmer
    36 m2 bis 99 m2

  • Baubeginn/Übergabe

    F 2026 / H 2027

  • Architekt

    Chronos Wohnbau Gruppe

ALLE
EG 1.OG 2.OG 3.OG
2 3 4

* Nebenkostenübersicht:
Grunderwerbssteuer: 3,5 % des Kaufpreises
Grundbucheintragungsgebühr: 1,1 % des Kaufpreises *
Vertragserrichtung & Treuhandabw. (exkl. USt. & Barauslagen): 1,5 % des Kaufpreises

* Am 20. März 2024 wurde im Nationalrat die temporäre Befreiung von den Gebühren für die Eintragung von Eigentumsrecht und Pfandrecht im Grundbuch bei Erwerb von Wohnraum beschlossen. Die temporäre Befreiung von den Gebühren für die Eintragung von Eigentumsrecht und Pfandrecht im Grundbuch gilt für den Erwerb von Wohnraum sofern der Kaufvertrag für die Liegenschaft oder der Pfandbestellungsvertrag nach dem 31. März 2024 geschlossen wurde, der Antrag auf Eintragung im Grundbuch zwischen dem 1. Juli 2024 und dem 1. Juli 2026 eingereicht wurde bzw. wird, die erworbene Wohnung oder das Grundstück der Befriedigung eines dringenden Wohnbedürfnisses dienen (nachgewiesen durch eine Hauptwohnsitzmeldung und die Aufgabe bisheriger Wohnrechte) und der pfandrechtlich gesicherte Kredit zum Kauf des Eigenheims aufgenommen und durch eine Bankbestätigung nachgewiesen wurde. Die Gebührenbefreiung gilt bis zu einer Bemessungsgrundlage von 500.000 Euro. Für den Teil, der über 500.000 Euro hinausgeht, ist die Gebühr zu entrichten. Bei einer Bemessungsgrundlage von mehr als 2 Millionen Euro besteht keine Gebührenbefreiung. Die Gebührenbefreiung ist je Rechtsgeschäft separat zu betrachten, daher sind beim Kauf durch 2 Personen 2 x 500.000 Euro gebührenbefreit.

"Fordern sie jetzt Ihr Prospekt an - ich berate Sie gerne persönlich! Alle Wohnungen kommen direkt vom Bauträger und sind natürlich provisionsfrei."

Patrick Guldenbrein, Dipl. Immobilienmanager

Lage


Die Lage überzeugt nicht nur durch die unmittelbare Nähe zur Natur, sondern auch durch eine ideale Infrastruktur.

So sind Haltestellen der öffentlichen Verkehrsmittel (Buslinien 33, 62, 65(A) und N7) zu Fuß nur wenige Minuten entfernt, und verbinden sie bequem und schnell mit dem Stadtzentrum und anderen Stadtteilen.

Beste Versorgung fürs tägliche Leben bieten die Supermärkte der großen Ketten und ein Bauernmarkt. Es gibt ein breites Angebot an Ärzten und Gesundheitseinrichtungen in der Nähe.

Ideal für Familien mit Kindern: Kindergarten, Volksschule, Mittelschule und Gymnasium sind nur wenige hundert Meter, weitere Bildungseinrichtungen wie die Landwirtschaftliche Fachschule Grottenhof nur wenige Kilometer entfernt.

Die Autobahnauffahrt Graz West und das übergeordnete Straßennetz sind genauso schnell zu erreichen wie die großen Fahrradrouten der Stadt.

Das Einkaufszentrum Center West ist nur 2,3 km entfernt.

Infrastruktur

  • Bushaltestelle 190 m
  • S-Bahn 1 km
  • Tankstelle 900 m
  • Radweg 10 m
  • Schwimmbad 2,9 km

 

  • Kindergarten 350 m
  • Volksschule 800 m
  • Mittelschule 100 m
  • Gymnasium 100 m
  • Center West 2 km

 

  • Supermarkt 130 m
  • Apotheke 700 m
  • Arzt AM 300 m
  • Service Graz 3 km
  • Sportplatz 400 m

Ihr Wohntraum wartet!
Fordern sie jetzt Ihr Prospekt an.
Auf Wunsch beraten wir Sie gerne persönlich und beantworten all ihre Fragen.

...
Patrick Guldenbrein

Dipl. Immobilienmanager

Ausstattung


Die Qualität der Ausstattung unserer Wohnungen ist uns ein besonderes Anliegen. Die Standard-Ausstattung der Wohnungen finden Sie im Abschnitt "Bau- und Ausstattungsbeschreibung (BAB)" unserer Projektbroschüre.
Natürlich können wir die Ausstattung auch an Ihre Wünsche anpassen. Insbesondere beim Kauf einer Wohnung im Vorverkauf stehen Ihnen noch viele Möglichkeiten offen, die Wohnung nach Ihren individuellen Vorstellungen umzuplanen. Diese Planungsleistungen sind für Sie kostenlos.

Sie können beispielsweise Ihr zukünftiges Badezimmer nach Ihren Wünschen gestalten. Bevorzugen Sie eine Standard-Badewanne oder eine Whirlpool-Wanne, eine bodeneben geflieste Dusche mit Einlaufrinne/Gully oder doch besser eine Duschwanne? Welches Waschbecken gefällt Ihnen? Wohin mit der Waschmaschine?

Ob es um die Anschlüsse Ihrer Traumküche, zusätzliche Steckdosen, einen weiteren TV-Anschluss oder die Abstimmung mit Ihrem selbstgewählten Fliesen und Bodenbelägen geht, unser Projektleiter ist in all diesen Punkten gerne für Sie da, und wird ihre Ideen in die bestehenden Pläne einarbeiten.
Sie erhalten Sie direkt von den ausführenden Firmen Angebote mit den Mehr- oder Minderkosten für Ihre Änderungen, die Sie dann nach Wunsch auch direkt beauftragen können.

Musterwohnung

Begleiten Sie unseren Vertriebsleiter auf einem exklusiven Rundgang durch unsere stilvoll eingerichtete Musterwohnung.

Dimensionen, Atmosphäre und Einrichtungsmöglichkeiten werden greifbarer, und Sie erfahren aus erster Hand, welche durchdachten Details und hochwertigen Ausstattungsmerkmale Ihr zukünftiges Zuhause besonders machen.

Oder gehen Sie mit uns auf eine virtuelle 360° Tour durch unsere Musterwohnung, und erkunden Sie selbst die Austattungsdetails.

Klicken und ziehen Sie mit der Maus, oder verwenden Sie die Pfeiltasten, um sich umzusehen.

Diese Musterwohnung steht übrigens weiterhin auch real zur Besichtigung bereit. Vereinbaren Sie einfach einen Termin mit unserem Berater und lassen Sie sich die Ausstattungsvarianten Ihrer Wohnung vor Ort zeigen.