Canaveseg. 4

Die Chronos Wohnbau Gruppe entwickelt die Liegenschaft in der Canavesegasse 4 im 23. Wiener Gemeindebezirk Liesing.

Das Grundstück befindet sich im Stadtteil Atzgersdorf in einer alleeartigen Straße in unmittelbarer Nähe zur historischen Kirche im Ortskern. Das bestehende Gebäude wurde bereits abgetragen, die Planung behördlich bewilligt. Der Neubau wird über Balkone, Terrassen und Grünflächen sowie über eine Tiefgarage verfügen. Auch eine gewerbliche Nutzung ist für einen Teil des Neubaus vorgesehen.

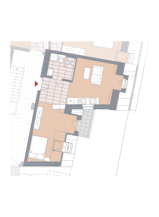
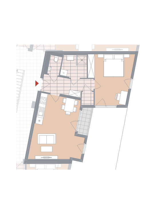
Zwei Baukörper mit insgesamt 18 Wohnungen und einer Gesamtwohnfläche von ca. 1.589 m² zzgl. Freiflächen mit ca. 315 m² werden entstehen. Das Kellergeschoss wird über eine Tiefgarage mit 20 PKW-Stellplätzen und 2 Motorrad-Stellplätzen verfügen.

  • Standort

    Canavesegasse 4
    1230 Wien-Liesing

  • Projekttyp

    Eigentumswohnungen
    4 Gewerbeflächen
    frei finanziert

  • Einheiten

    17 von 18 Wohnungen u.
    4 Gewerbeeinheiten verfügbar

  • Quadratmeter

    2 - 5 Zimmer
    42 m2 bis 114 m2

  • Baubeginn/Übergabe

    S 2026 / H 2027

  • Architekt

    Chronos Wohnbau Gruppe

ALLE
HAUS 1 HAUS 2
EG 1.OG 2.OG 3.OG
1.OG + 2.OG
2 3 4 5
GEWERBE ORDI BÜRO

* Nebenkostenübersicht:
Grunderwerbssteuer: 3,5 % des Kaufpreises
Grundbucheintragungsgebühr: 1,1 % des Kaufpreises
Vertragserrichtung & Treuhandabw. (exkl. USt. & Barauslagen): 1,5 % des Kaufpreises

* Am 20. März 2024 wurde im Nationalrat die temporäre Befreiung von den Gebühren für die Eintragung von Eigentumsrecht und Pfandrecht im Grundbuch bei Erwerb von Wohnraum beschlossen. Die temporäre Befreiung von den Gebühren für die Eintragung von Eigentumsrecht und Pfandrecht im Grundbuch gilt für den Erwerb von Wohnraum sofern der Kaufvertrag für die Liegenschaft oder der Pfandbestellungsvertrag nach dem 31. März 2024 geschlossen wurde, der Antrag auf Eintragung im Grundbuch zwischen dem 1. Juli 2024 und dem 1. Juli 2026 eingereicht wurde bzw. wird, die erworbene Wohnung oder das Grundstück der Befriedigung eines dringenden Wohnbedürfnisses dienen (nachgewiesen durch eine Hauptwohnsitzmeldung und die Aufgabe bisheriger Wohnrechte) und der pfandrechtlich gesicherte Kredit zum Kauf des Eigenheims aufgenommen und durch eine Bankbestätigung nachgewiesen wurde. Die Gebührenbefreiung gilt bis zu einer Bemessungsgrundlage von 500.000 Euro. Für den Teil, der über 500.000 Euro hinausgeht, ist die Gebühr zu entrichten. Bei einer Bemessungsgrundlage von mehr als 2 Millionen Euro besteht keine Gebührenbefreiung. Die Gebührenbefreiung ist je Rechtsgeschäft separat zu betrachten, daher sind beim Kauf durch 2 Personen 2 x 500.000 Euro gebührenbefreit.

"Fordern sie jetzt Ihr Prospekt an - ich berate Sie gerne persönlich! Alle Wohnungen kommen direkt vom Bauträger und sind natürlich provisionsfrei."

Patrick Guldenbrein, Dipl. Immobilienmanager

Lage


Leben fast wie im Speckgürtel mit der Nähe zu Wien und dennoch nicht weit ins Grün. An der Pfarrkirche gleich um die Ecke befindet sich noch heute eine Marienstatue des Hof-Bildhauers Cesare Antonio Canavese.

Atzgersdorf ist durch die S-Bahn und mehrere Buslinien gut an den öffentlichen Verkehr angebunden. Die S2, S3 und S4 fahren vom Bahnhof Atzgersdorf bis Wien Floridsdorf bzw. Wiener Neustadt.

Mit den Buslinien 56A, 58A und 58B ist die U4-Station „Hietzing“ bequem erreichbar. Die Buslinien 60A und 66A bringen Sie zum Bahnhof Wien Liesing bzw. zur U6-Station „Alterlaa“, wodurch die Wiener Innenstadt in nur 25 Minuten erreichbar ist. Spontanen Treffen oder der Besuch von kulturellen Veranstaltungen steht also nichts im Weg.

Für die Dinge des täglichen Bedarfs finden sie in unmittelbarer Nähe etliche Möglichkeiten. Das Shoppingcenter Riverside oder auch das Westfield (SCS) sind mit ihren schier endlosen Möglichkeiten nur ums Eck und gut öffentlich erreichbar.

Der neue Stadtpark-Atgersdorf befindet sich ganz in der Nähe und ist nur 700 m entfernt. Er wird 2023 eröffnet. Erholsame Spaziergänge sind auch entlang der Liesing bei Joggern und Hundebsitzern sehr beliebt. Man findet hier viele tolle, kreative Spielplätze entlang des Weges.

In westlicher Richtung entlang der Liesing gelangt man rasch ins Grüne. Zum Lainzer Tiergarten sind es nur 3 km oder zur Perchtoldsdorfer Heide sind es 4 km. Ausgiebige Spaziergänge auf eine der beliebten Hütten im Naturpark Föhrenberge laden hier ein.

Infrastruktur

  • Bushaltestelle ~80 m
  • S-Bahn ~500 m
  • Tankstelle ~1 km
  • Tennis ~1,5 km
  • Radwege ~300 m
  • Supermarkt ~400 m
  • Apotheke ~300 m
  • Ärztezentrum ~3,2 km

 

  • Kindergarten ~400 m
  • Volksschule ~150 m
  • Mittelschule ~350 m
  • Gymnasium ~1,8 km
  • Riverside ~1,6 km
  • Magistrat ~2 km
  • Höpflerbad ~600 m

Ihr Wohntraum wartet!
Fordern sie jetzt Ihr Prospekt an.
Auf Wunsch beraten wir Sie gerne persönlich und beantworten all ihre Fragen.

...
Patrick Guldenbrein

Dipl. Immobilienmanager

Ausstattung


Die Qualität der Ausstattung unserer Wohnungen ist uns ein besonderes Anliegen. Die Standard-Ausstattung der Wohnungen finden Sie im Abschnitt "Bau- und Ausstattungsbeschreibung (BAB)" unserer Projektbroschüre.
Natürlich können wir die Ausstattung auch an Ihre Wünsche anpassen. Insbesondere beim Kauf einer Wohnung im Vorverkauf stehen Ihnen noch viele Möglichkeiten offen, die Wohnung nach Ihren individuellen Vorstellungen umzuplanen. Diese Planungsleistungen sind für Sie kostenlos.

Sie können beispielsweise Ihr zukünftiges Badezimmer nach Ihren Wünschen gestalten. Bevorzugen Sie eine Standard-Badewanne oder eine Whirlpool-Wanne, eine bodeneben geflieste Dusche mit Einlaufrinne/Gully oder doch besser eine Duschwanne? Welches Waschbecken gefällt Ihnen? Wohin mit der Waschmaschine?

Ob es um die Anschlüsse Ihrer Traumküche, zusätzliche Steckdosen, einen weiteren TV-Anschluss oder die Abstimmung mit Ihrem selbstgewählten Fliesen und Bodenbelägen geht, unser Projektleiter ist in all diesen Punkten gerne für Sie da, und wird ihre Ideen in die bestehenden Pläne einarbeiten.
Sie erhalten Sie direkt von den ausführenden Firmen Angebote mit den Mehr- oder Minderkosten für Ihre Änderungen, die Sie dann nach Wunsch auch direkt beauftragen können.

Musterwohnung

Begleiten Sie unseren Vertriebsleiter auf einem exklusiven Rundgang durch unsere stilvoll eingerichtete Musterwohnung.

Dimensionen, Atmosphäre und Einrichtungsmöglichkeiten werden greifbarer, und Sie erfahren aus erster Hand, welche durchdachten Details und hochwertigen Ausstattungsmerkmale Ihr zukünftiges Zuhause besonders machen.

Oder gehen Sie mit uns auf eine virtuelle 360° Tour durch unsere Musterwohnung, und erkunden Sie selbst die Austattungsdetails.

Klicken und ziehen Sie mit der Maus, oder verwenden Sie die Pfeiltasten, um sich umzusehen.